壁挂炉维修培训(壁挂炉知识培训)
壁挂炉维修培训(壁挂炉知识培训)
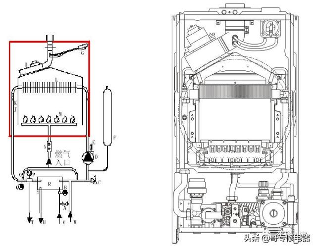
一、壁挂炉工作原理
为了适应家庭使用的要求:安装简单、操作方便、空间占用小等,壁挂炉除了有燃烧换热系统之外,收容了所有能集成的功能部件,如水泵、膨胀水箱、安全开关、水罐等部件。

1、燃烧系统:负责燃气安全稳定燃烧,释放燃气的化学能
空气室、燃烧室、燃烧器、风机、烟道、风压差管、风压差开关
2、换热系统:负责热交换,提高水温。包括气-水、水-水热交换
主换热器、板式换热器、采暖NTC、卫浴NTC、极限温度开关
3、水路动力及安全系统:负责提供水流动力,维护系统管道安全
水泵、安全阀、膨胀水箱、水压差开关、旁通阀
4、电控系统:负责协调各系统的工作,设置工作参数及显示壁挂炉的工作状态控制板、显示板
5、其它部件水压表、补水阀
二、燃烧系统
1、空气室
功能1:摆放燃烧室、换热器的密闭空间,
达到壁挂炉密闭式燃烧的目的
功能2:提供空气流通的通道

2、燃烧室
功能1:燃气燃烧的场所

功能:引导燃气、空气进入燃烧室充分混合燃烧。


3、烟道
功能:燃烧烟气排放出壁挂炉,室外空气进入壁挂炉的通道。
小松鼠壁挂炉采用同轴烟道,内管是烟气排放,外管是空气进入通道。
同轴烟道有两个好处:压力平衡、空气预热

4、风压差测试管
功能:检测壁挂炉烟道内的风压差。
包括一根文丘里管和一根压力直管。
文丘里管和风压直管分别测得压力进行比较,可以知道烟道内的烟气流动情况。

5、风压差开关
功能:向电控系统反馈烟道内的烟气流动状况。
风机没有运行时,烟道内没有空气流动,压力直管和文丘里管的压力相同,风压差开关断开。
风机运行后,烟道内的空气流动,文丘里管的压力小于压力直管的压力,风压差开关闭合。

6、燃气阀
功能:开启/关闭燃气供应通道,调节燃气流量。(中信燃气阀是直流阀,其他的都是交流阀)

7 燃气阀工作原理1

燃气阀工作原理_2

燃气阀工作原理_3

EV1打开,燃气进入燃气阀;
EV2未开,伺服系统没有气体,活塞没有打开,燃气不能通过燃气阀。
燃气阀工作原理_4

EV2打开,伺服系统有气体,打开活塞,气体通过燃气阀。
8、点火/火焰检测电极
功能:(1)发出电火花点燃燃气。(2)监测燃气燃烧状态。
在点火前,壁挂炉检测一次残火,如果通过电极感受到火焰信号,则报故障。
点火后,壁挂炉一直监控燃气燃烧状况,当感受不到火焰信号,则报故障。点火电极两端电阻大约是1.2K.

三、换热系统
1、主换热器(一次换热器)
功能:把燃气燃烧产生的高温烟气的热量传递给水,水温度升高。

2、板式换热器(二次换热器)
功能:把主换热器出来的一次热水的热量传给卫浴水,使卫浴水温度升高。
板换机(SD、SL、SFD)有,套管机(SP、SFP)和单采暖机(SK、SLK)没有。

(1)一面冷水,一面热水
(2)波纹面增加换热面积,易于在低速状态形成湍流,提高换热效率

2、采暖NTC和卫浴NTC
功能:检测热水的温度。
NTC是负温度系数热敏电阻的简称,其性质:温度高,电阻低;温度低,电阻高;25℃时,NTC阻值是10K。

3、极限温度开关
功能:监测水的温度。正常情况下,极限温度开关闭合。当水温超过允许值时,极限温度断开,电控系统由此知道一次热水超温。
极限温度开关放置在主换热器出水口。板换机设置的温度是102度,套管机设置的温度是95度。


四、水路动力及安全系统
1、 循环泵
功能:提供水在管道水流的动力。
工作电压220V,有三个手动调速档,无自动调速功能。
18/24kW的机型配5米扬程循环泵,28/32kW配6米扬程泵。

循环泵参数
1 扬程:单位重量液体经过泵后所获得的机械能,体现为管道中流体静压力的增加。 单位为KPa、mbar、mH2O等。

2 流量:单位时间内从泵中排出的流体体积或质量,单位m /h、L/s、kg/h等
3 轴功率:由原动机或传动装置传到泵轴上的功率,单位kW。
4 效率:泵的输出功率与输入功率之比。
6 水泵的特性曲线
3 系统特性关系式

4管道流速限制
在采暖系统,水流噪音与水流速度成正向激励关系,即水流速度越大,水流噪音越大。因此,在采暖系统的设计中,通常会限制水流速度以抑制水流噪音。

5沿程损失(单位Pa/m)
(1)表示流体在管材中每走一米的压力损失量
(2)管径越大,沿程损失越小
2、安全阀
功能:当管道内的水压超过允许压力时,安全阀自动打开放水泻压。
采暖水管道安全阀开启压力3bar,自来水管道安全阀开启压力7bar。

3、膨胀水箱
功能:中和缓冲管道中的水压变化,维持水压稳定。
膨胀水箱预冲0.1MPa的氮气。


4、旁通阀
功能:当管道压力太大,热水无法顺利通过外面的采暖管道返回采暖回水口时,旁通阀打开,形成一个小回路,使换热器内的水能够继续循环,避免水滞留在主患热器内持续受热引起故障。
G20水路的三通阀有旁通功能,因此G20机型没有单独的旁通管。


5、水压差/水压开关
功能:监测管道内的水压。正常情况下水压差开关闭合,异常时,水压差开关断开,电控系统由此知道壁挂炉状态异常。
G20水路使用水压开关,正常情况下一直闭合,水压低时断开。
FUGAS水路使用水压差开关,水泵运行时闭合,水泵停止时断开。当水泵运行时断开,或水泵停止时闭合,表明状况异常。


五、其它部件
1、水压表
功能:显示系统管道内的水压力。
使用时,当水压表指针在红色区时,需要给系统补水。一般补到0.15MPa为宜。

2、 补水阀
功能:给系统补水。
G20水路的补水阀在出水组件;FUGAS水路的补水阀在进水组件。

3、 水流开关/水流传感器
功能:监测卫浴水的流动。
当用户打开水龙头,卫浴水流动,水流开关/水流传感器发送信号给电控系统,电控系统转入卫浴模式。
G20水路使用水流传感器,FUGAS水路使用水流开关。两者都是基于霍尔元件的电磁效应工作。

4、霍尔效应
当电流通过金属箔片时,若在垂直于电流的方向施加磁场,则金属箔片两端产生一个横向电位差。

5、 水流开关/水流传感器
水流开关工作原理

流量传感器

水流传感器的工作原理
水路涡轮转动,带动固定在涡轮上的磁铁旋转,磁铁旋转使磁场发生变化。霍尔元件感应到磁场的变化,输出正弦波信号,经过处理得到脉冲信号。

6、三通阀
功能:切换水的流向。
三通阀是使用单管型主换热器的机型(SD、SL、SFD)实现采暖和卫浴双功能的功能部件。
完整的三通阀包括阀体和电机。阀体是水路转换的执行部件,电机提供阀体实现水路切换的动力。

六、控制板
功能:控制、协调壁挂炉各子系统的运行,检查壁挂炉地运行状态,监控壁挂炉的 安全状态。
主要的型号:
DTM08A 用于B1系列面板机,DTM10A 用于C系列面板机,DTM13A用于除B1、B7之外所有B系列面板机,DTM03-1A可以用于B、C系列面板机,DTM03-2A用于落地炉。





917主板和4520主板的辨识
917主板和4520主板的控制功能相似,功能接线端子数量一样,布局一样
917主板用于没有定时功能的机型,如C系列
4520主板用于有定时功能的机型,如B2/B3/B4/B5/B6等

新主板注意事项
新主板必须配新显示板,旧显示板一般不能与新主板一起工作
新主板上的备用端子只在有特殊要求的机型上使用,具体用法需要参考使用说明书
工作流程



,
-
- 现在的刘涛怎么样了(刘涛这次真离了)
-
2023-08-17 02:22:21
-
- 九十年代台海局势(回顾1996年台海危机)
-
2023-08-17 02:20:16
-
- 小米机械键盘推荐(国产科技大佬涉足外设)
-
2023-08-17 02:18:11
-
- 什么牌子的产品预防妊娠纹好(消协检测30款热门抗妊娠纹产品)
-
2023-08-17 02:16:06
-
- 妇女用品有哪些品牌(成人用品销量暴增)
-
2023-08-17 02:14:01
-
- 社工在哪个网站报名(社工必备查询网址汇总)
-
2023-08-17 02:11:56
-
- 阿尔萨斯陷阱(躲不掉的马尔萨斯陷阱)
-
2023-08-17 02:09:51
-
- 比特币永续合约与杠杆(读懂交易者宠儿)
-
2023-08-17 02:07:46
-
- 小学语文阅读理解100篇及答案免费(小学语文1-6年级阅读理解练习)
-
2023-08-17 02:05:41
-
- 保险知识每日科普(读懂切身相关的保险知识)
-
2023-08-16 23:10:51
-
- 高通ai引擎(高通AIEngine性能霸榜背后这些值得你了解)
-
2023-08-16 23:08:46
-
- 百慕大三角之谜 解密(写进百科全书的百慕大三角)
-
2023-08-16 23:06:41
-
- 105崇祯十七年1644(105崇祯十七年1644)
-
2023-08-16 23:04:36
-
- 太阳出现耀斑对地球有什么影响(2023年太阳将有大变动)
-
2023-08-16 23:02:31
-
- 自动清洗家用智能擦地机(智能双刷吸拖一体)
-
2023-08-16 23:00:26
-
- 古人来月经如何处理(树叶草灰月经带)
-
2023-08-16 22:58:22
-
- 清太祖爱新觉罗努尔哈赤简介(清太祖努尔哈赤)
-
2023-08-16 22:56:17
-
- 阿迪达斯哪款篮球鞋最好(聊聊阿迪达斯近几年多双备受关注的BOOST篮球鞋)
-
2023-08-16 22:54:12
-
- 过滤器filter的实现原理(过滤器Filter与拦截器)
-
2023-08-16 22:52:07
-
- 苹果手表watch功能大全(你真的需要一块苹果手表)
-
2023-08-16 15:38:45



地铁线路图昆明5号线(5号线来了快上车)
安踏特步多少亿(安踏特步361度的老板为什么都姓丁)